
2024.10.21
文:劉嫈琦 攝影:劉嫈琦
【傳承-臺灣傳統閩南穿鬪式竹挵仔茨】「設計與實作課程」經過長久的規劃,2024年9月正式開課了。
~~~❖第一週課程~~~
始業式由林雅茵建築師與黃彥霖大木匠師帶領,請大家各自用自己的宗教或是崇敬自然宇宙的心,感謝天,感謝地,感謝萬物眾生,接納我們在此,感謝這個場地與課程計畫所有人,共同提供我們在此學習的機會。
本課程有五項特色:
一、 設計原理與實作技法並重,完整了解從設計到營造的過程。
二、 由設計開始詳細說明並實際落丈篙,所有設計可以濃縮在三、四支丈篙之中,重要性不言而喻。
三、 課程遵循傳統使用刺竹與長枝竹。
四、 凸歸式屋頂與所用之靠母柱工法,乃傳統重要類型與工法,考量此類型工法已經瀕臨失傳,本課程希望嘗試予以重現,俾將先人建築創意與智慧傳承下去。
五、 本課程以廖枝德司阜的慣用手法作為教學依據。
%20202420241015%20-%201.jpg)
圖01:廖枝德司阜名列台南名人堂
學員來自臺灣各地,包含東部宜花東、屏東、新北都有學員不辭辛勞專程到雲林斗六前來學習。背景多元,有建築與室內設計、專業匠師與自然建築、工藝美術商品設計、木竹行與竹工藝、學校、農林、原民相關、學生、或實踐永續生活人士。年齡各異,從退休人士到三位高中生,男女比例接近。課程對象不限於專業人士,因為竹子是常民的建材,竹挵仔茨是臺灣傳統常民建築,本課程傳承的不只是竹構建築技術與營造工法,而且是先人的設計思維與生活智慧,期待學員藉由傳統竹構的紮實基礎訓練,培養熟悉竹子這樣自然材料的變異性,幫助學員面對未來自在純熟運用竹材實現各種創意。
課程開始由世界各地的風土建築引入屬於臺灣的風土建築,其中竹挵仔茨分佈廣泛且跨越種族,由於是常民建築,經歷工業革命之後缺乏維護極速消失,而在學員課前作業報告之中發現,學員在民宅巷弄之間,會不經意發現傾頹的竹挵仔茨,加上田調訪談七十歲以上老人家經常有村落共同協助興建竹挵仔茨的記憶,可見竹挵仔茨是臺灣具代表性的竹構建築。
%20202420241022%20-%2066.jpg)
圖02:臺灣傳統建築竹挵仔茨 (photo from 臺灣國定古蹟編纂研究小組)
竹挵仔茨建築正經歷斷層,近期對於傳統與常民建築的重視,從老匠師身上再度傳承出來的工法技藝,大多是口說相傳,很少能有一致的文字描述。此次課程盡量以老匠師慣常使用的台語口語,來描述構架元件與空間或傳統工法,除了不確定的用字無法翻譯成中文文字,也希望透過台語口語的傳承能夠傳遞蘊含的文化意涵。
竹挵仔茨的特色是構架及屋架均為純竹構,牆面結構用竹挵仔穿過竹柱形成穿鬪式架扇,「挵」代表穿的這個動作,柱仔與挵仔形成架扇或是壁路,彼此垂直組立成為構架。
竹挵仔茨沒有地基,是完全自立構造。在台南安南地區還有「扛茨走溪流」,在大水來臨前合力將房子扛走的記憶。
%20202420241015%20-%202.jpg)
圖03:李養司阜蓋的竹挵仔茨曾由近百人合力扛起走上大街
竹挵仔茨結構彼此垂直相接,沒有任何斜撐,視覺上柱仔極度彎曲形成強烈印象,並且彎曲的方向一致,都是以中柱為心有腰身的向外,除了刺竹本身生長環境造成容易彎曲,先人智慧將彎曲納入穿鬪式結構,使材料可以就地使用,並且有結構強度的意義,久之也形成風水與文化的美感。
%20202420241015%20-%204.jpg)
圖04:竹構學苑附近溝壩社區竹挵仔茨
結構連接方式在柱頂做成柱嘴含(鴨嘴含 Fish mouth)連接屋架的楹仔,用竹篾或藤皮綁紮,而楹仔是連接各架扇的繫樑。長度續接方式有大管包小管,或是前後壁路的挵仔尾端互疊,挵仔孔做成雙生子。
這次的課程特色有凸歸式屋頂,是房間與五間之間脊梁下降,因此有靠母柱與靠母梁來協助支撐。這是過去竹挵仔茨普遍的做法,因為不再有新蓋的完整竹挵仔茨,此工法竟然瀕臨失傳,因此本課程希望將此工法傳承下去。
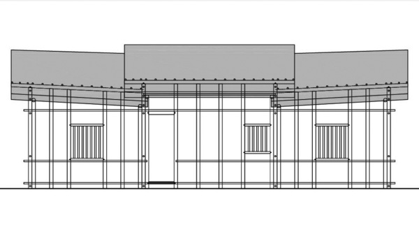
此次課程實作的竹挵仔茨規格是五間,囿於課程時間限制省略中廳二架扇形成三間,有四面架扇與前後壁路,楹仔十一架,出簷形式是出屐,屋面是二披水、懸山式,屋脊有翹脊,房間到五間有凸歸,五間屋面是反卦,壁體工法是編竹夾泥牆,將在課程期間由學員共同建造完成主要架構。
%20202420241015%20-%205.jpg)
圖05:設計與實作課程的竹挵仔茨立面圖
過去工匠以師徒制身體力行方式傳承,近代老司阜透過自學也能手繪架扇立面圖等圖說傳授。林雅茵建築師以電腦繪製竹挵仔茨精準尺寸的平面圖、立面圖、剖面圖來解說竹挵仔茨整體結構,同時製作3D立體圖解說竹挵仔茨組立工序,學員們非常幸福,又非常頭大,資訊量龐大到一個腦袋裝不下,幸好分組學員們彼此可以互相協助,雅茵老師時常停下來詢問有沒有問題,而且課程是設計與實作同時並行,在接觸實際構件處理時一點一滴累積在身體記憶中,有很好的學習效果。
%20202420241015%20-%206.jpg)
圖06:林雅茵建築師講解竹挵仔茨設計
%20202420241015%20-%207.jpg)
圖07:學員專注理解與吸收
大家在平、立、剖圖面解說之下,認識竹挵仔茨平面圖五間縮減成三間的過程,從屋裡向外看左邊是龍邊右邊是虎邊。架扇剖面圖,從中間的中柱,向前面的是陽邊,有前二柱、前三柱、前四柱、前角柱,向後面的是陰邊,有後二柱、後三柱、後四柱、後角柱。橫向的是挵仔,上方紗帽翅,下來是一川二川三川,出簷處支持簷口楹的挵仔是屐,有前上屐、後上屐、前下屐、後下屐,最底下的挵仔是歸下挵仔,往上在腰部是歸下腰,再往上是歸三挵仔。不同架扇面與前後壁路面的名稱各有些微差異。
進入動手實作,由彥霖老師示範製作竹工輔助工具:三腳馬與土馬,施作時架竹子用的。土馬是竹子側面鑿大約10公分寬5公分深的洞,讓竹子在地面施作時可以放在土馬上防止滾動。三腳馬是將兩支適當長度刺竹,在上端以竹子直徑鋸半鑿開互卡,兩面鑿洞後穿過較細的竹子,三支竹子形成穩固平面,可以架竹子,要鋸要捽繩要標線,都可以幫助身體在較高的平面處理,減少身體的負擔,最後還可以坐在架起來的竹子上鑿孔,果真宛如騎著竹馬。
加上前導課程製作竹筆實作,做竹構工作之前,先用竹子做成工具,一來竹子是手邊現有材料,二來是開始認識竹子的特性,觸摸竹子,與竹子一起工作,對接下來竹構的工作有莫大的助益。
%20202420241015%20-%208.jpg)
圖08:竹工工具三腳馬,可實際坐在其上鑿孔
在前導課程中,彥霖大木匠師提到蓋房子開始前請風水師來選址,分金選擇座向,考慮主人家生辰八字與五行相生相剋判斷吉凶,執篙司阜再合寸白選擇適當尺寸,這是竹挵仔茨設計的前置作業,也是人們將建築作為當時宇宙觀的縮影。
雅茵老師講授竹挵仔茨的設計,本課程預定完成的竹挵仔茨是五間縮減中廳的三間十一架凸歸竹挵仔茨,從天父開始制定,雖然中廳囿於課程時數而縮減,所有的尺寸仍然從中廳開始作為推算的依據,並以台尺為單位。「天父」11.5尺,是地面到中廳中柱上的中楹底高,翹脊後房間外的中楹底高要加五寸,房間到五間有凸歸落八寸,五間外的中楹底高回到天父的尺寸11.5尺,在五間形成反卦。屋脊的尺寸完成。
從天父可以推定「地母」,天父減一寸即中廳「面闊」寬度尺寸,房間寬度尺寸通常是9.8尺。「深間」即房屋縱深方向,是天父乘上1.4,1.4是慣用的常數。
「陰陽坡」即屋頂前後坡,坡長遵循「陰坡長,陽坡短」的禁忌原則,分配陰陽坡水平長度。依照此原則形成前方明亮,後方遮陽避雨,充滿生活智慧。
架間「分縫」,決定十一架的楹仔彼此之間的距離,遵循「前不槓人,後不槓神」禁忌原則,和前後巷路慣用尺寸2.8尺,加上「步步進」原則讓柱子間距由外向中心是由寬而窄,而分配出楹仔間距。
「定水卦」是決定屋面斜率,除了屋脊微微上翹成為翹脊,屋面的水卦也會隨之微微變化,形成迷人的「反卦」曲線。中廳水卦三三水(即水平10尺上升33寸),房間外架扇水卦三五水,到五間外架扇再回到三三水。
由以上各尺寸資訊可推算架扇各楹仔底「下皮」的高度。
推算挵仔的高度,上方的紗帽翅一川二川三川由各楹底向下推算。下方的歸下挵仔、歸下腰挵仔、歸三挵仔等由下方向上推算。前後上屐或下屐由前後簷口楹推算。
門窗尺寸各有慣用的尺寸,以上各基本尺寸原則可推算各項元件高度,繪製「天父尺」高度丈篙。
%20202420241015%20-%209.jpg)
圖09:學員們專注理解,學習手冊上的尺寸都是由學員自行推算
%20202420241016%20-%2064.jpg)
圖10:房間外架扇剖面圖筆記
林雅茵建築師講解丈篙的同時,由黃彥霖匠師示範高度丈篙實際製作。「尺花」是將丈篙每一尺畫上記號,做為繪製與量測時參考。高度丈篙繪製與推算尺寸時類似的順序,從天父即中楹底部開始繪製,將各楹仔底高與各挵仔位置標記。丈篙是實際裁切與鑿孔時量測的標準,楹仔與挵仔所繪的記號不同,必須清楚所繪製線條是構件頂或是構件的下緣,明確的標記構件位置在線條以上或以下。楹仔底部高度是柱頂,但是柱子裁切需要多留一寸「柱額」做「柱嘴含」銜接楹仔。門窗位置也需同時標記。再仔細核對後,完成一支高度丈篙。
%20202420241015%20-%2010.jpg)
圖11:彥霖老師繪製天父尺高度丈篙
%20202420241015%20-%2012.jpg)
圖12:學員小組共同討論繪製天父尺
老師們講解丈篙推算與示範繪製後由學員們分組製作,繪製丈篙是將一棟立體的房子畫在一根竹片上,畫的是一維的線條,腦中想像的是三維的空間的。例如楹仔和挵仔都會和柱仔連接,都會繪製在高度丈篙上,但是架扇上的楹仔和挵仔是不同方向構件。再舉例,一樣是挵仔,架扇的挵仔和前後壁路的挵仔是不同方向。這些細節都需要學員建立完整的結構概念之後,才能讀懂一支丈篙,甚至繪製一支丈篙。
尺寸同時是一大挑戰,雅茵老師教的是推算尺寸的方法,各學員推算結果決定構件在丈篙上的位置,學員一開始不一定完全了解,但是小組內的學員在多元的安排之下,總是有一兩位學員能夠了解多一些,開始動手繪製之後,彼此溝通,互相分享自己所理解的結構,互相幫忙計算所需要的尺寸,再三確認繪製的位置與記號正確,理解慢一些的學員也能夠知道這個記號代表的意義,慢慢的小組內的工作方式也逐漸建立起來。
%20202420241015%20-%2013.jpg)
圖13:推算尺寸需要反覆確認
彥霖匠師特別分享在傳統建築測繪上的經驗,雖然現代有3D雷射掃描一打,所有的尺寸都很準確的量出來,但是自己去做量測是不一樣的,用手會細心。他建議大家還是要人工測量繪製傳統建築物,在人工測量的過程中,才能理解當年的司阜是如何思考,如何決定這些尺寸的,有許多秘密藏在現場的結構與尺寸當中,當我們理解老司阜的思考方法,這樣的智慧才能夠真正的傳承下去。
~~~❖第二週課程~~~
選取適合的刺竹作為柱仔。看似簡單的取料,卻有許多看不見的眉角在裡面。刺竹容易S型甚至螺旋型生長,在竹林工班選材時,必須挑選只有一向彎曲的刺竹作為柱仔,備料階段正好經歷凱米颱風,台南龍崎區竹林折斷大半,工班師傅非常辛苦才能為課程備好完整的材料,學員在挑選時也很不容易必須取捨,每一支都很珍貴。
%20202420241015%20-%2014.jpg)
圖14:經歷颱風後採收到至少一向通直的刺竹支支都珍貴
%20202420241015%20-%2015.jpg)
圖15:挑選竹料
先選取粗壯、成熟、肉厚、一向彎曲且足夠長度的刺竹作為中柱,再選兩向通直的刺竹作為角柱,其餘柱仔皆一向彎曲,粗細與中柱做搭配。
先轉動竹子觀察柱料彎曲情況,選取通直的方向稱作「水路」作為壁面。選取柱料時需要搭配高度丈篙,上面有各柱仔的高度即楹底,加一寸做柱嘴含,柱仔兩端都需要竹節保護,再觀察丈篙上挵仔位置是否與竹節相衝,或是挵仔孔兩旁竹肉是否足夠,如果不合適就移動丈篙到下一個竹節試試看。適合的竹料以丈篙為垂直參考線,以竹筆畫下裁切線,使柱仔立起來後裁切線是與地面平行的,並選擇漂亮的一面作為外側。
%20202420241015%20-%2016.jpg)
圖16:尋找水路
%20202420241015%20-%2017.jpg)
圖17:以丈篙測量挑選竹料
%20202420241015%20-%2019.jpg)
圖18:以竹筆繪製裁切線
%20202420241015%20-%2020.jpg)
圖19:再三確認後裁切竹料
%20202420241015%20-%2021.jpg)
圖20:竹料取料含架扇面靠母仝
材料選取後立刻編號。一棟房屋有數百構件,細心挑選某個位置的材料,不適合其他位置,又有四組架扇與前後壁路同時進行,構件編號必須一致不會重複才能區分彼此。通常由按場司阜編定此場構件編號系統,此課程由老師們討論後擬定所有構件編號規則,學員們選取材料後以竹筆書寫在構件外側,這也是老司阜們的習慣做法。
%20202420241015%20-%2022.jpg)
圖21:構件編號
%20202420241015%20-%2023.jpg)
圖22:挑選柱料後編號排列
%20202420241015%20-%2024.jpg)
圖23:和經過反覆觀察挑選出來的竹子已經很有感情了
分享到 更多文章